Moderniser et uniformiser

Maison de ville à Versailles  – 2021

Informations

Type de projet

Conception et travaux

Localisation

Versailles

Ambiance

Moderne

Prix travaux

20.000€

Surface du projet

3 pièces

Réalisation en

2021

Description du projet

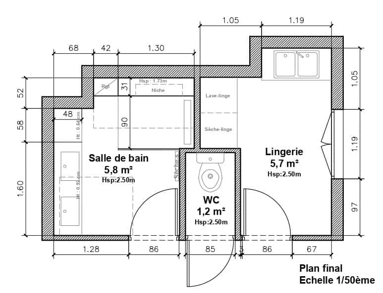
Redonner un coup de neuf à une salle de bains de plus de 20 ans, tel était l’enjeu pour ce projet dans une maison située à Versailles. La cliente souhaitait uniformiser et moderniser ces 3 pièces : la salle de bain, les toilettes et la buanderie.

Pour la salle de bain, une douche vient remplacer l’ancienne baignoire et l’espace a été repensé pour optimiser les espaces perdus sous le plafond mansardé grâce à la création d’un coffrage pour accueillir des niches et des étagères. Un carrelage imitation bois vient mettre en valeur l’espace de la douche ainsi que les niches créées tout en apportant une touche de chaleur. Un large plan double vasque vient habiller la pièce, complété par une tablette créant une continuité sur l’ensemble du mur. Pour équilibrer cette association, un miroir sur-mesure vient recouvrir le mur sur toute sa longueur, associé avec une crédence en dalle de terrazzo véritable apportant couleur et originalité à l’espace.

Nous retrouvons aussi cette crédence dans la laverie pour harmoniser cette pièce avec la salle de bain, tout comme les étagères, rangements et plans de travail aux finitions en chêne présents dans les trois pièces.

Côté toilettes, un papier peint tropical panoramique noir et blanc vient habiller les murs latéraux pour créer une ambiance bien particulière et offrir un décor fantaisiste à l’espace.

Photos avant travaux

Projet de conception

Réalisation des travaux

95% de nos clients, nous ont recommandé !

Un projet clé en main réalisé par des artisans compétents

100% gratuit • réponse en quelques heures